開箱22坪北歐風療癒系親子宅!奶茶色的溫馨日常,拆一房更明亮寬敞

2025.06.16 媒體專訪 媒體來源|100室內設計 整理|Carol

【基礎資訊】

屋況:新成屋
坪數:22坪
格局:3房2廳2衛
房屋類型:單層
設計公司:寬象設計
設計風格:北歐風
裝修花費:201-300萬

【屋主導語】

過去我們都是租房子住,空間不大,直到遇上適合的時機,我們決定買下這間22坪的房子,開始為自己打造一個家。對我們而言,家不只是用來住的地方,更是每天結束忙碌之後,能讓人慢下來、好好喘口氣的療癒空間。

一、找設計師的心路歷程

購入這間預售屋時,我們對於裝潢還沒有太具體的想法,於是開始在100室內設計APP上找尋靈感,也諮詢了四間設計公司,最後會選擇寬象設計,是因為作品很打中我們的心,那種自然的氛圍讓人一看就放鬆下來,非常療癒!我們也和設計師很聊得來,溝通起來輕鬆又安心,毫不猶豫的將客變和後續的裝潢規劃都交給他們。

二、我的裝修需求

其實在客變階段,我們原本是以頂客族的生活方式為出發點,跟設計師討論時也都是針對兩人世界來規劃的,沒想到交屋的那年,孩子已經出生,於是整個裝潢方向也跟著翻轉,從為兩個人打造的家,變成一家三口共享空間。我們重新和設計師討論了需求,主要聚焦在以下幾個方向:

1.風格:希望整體氛圍柔和簡約,住起來讓人感到放鬆,並沒有特別指定風格或配色,只希望色調不要太重,其餘的就交給設計師發揮。

2.收納:每個空間都有基本收納機能即可,不追求過度收納,更在意整體的清爽感,以及使用上是否順手便利。

3.機能:客廳、餐廳、廚房採開放式設計,讓視線、光線能穿透,全家人可以自在待在一起保有互動,我們在下廚或辦公時,也能隨時照看孩子。

三、設計重點&平面規劃

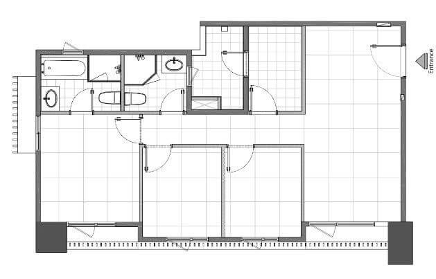
整體空間設計,不是照著原本格局走,而是根據我們的生活習慣做了很多調整,像是將其中一間房拆掉,改成餐廳,並把原本獨立的廚房改成開放式設計,讓整個公領域更開闊、明亮。廚房空間放大後,設計師特別利用玄關旁邊的角落,規劃了一間小儲藏室,不佔用主要空間,卻提供了非常實用的收納機能,這個巧思設計真的是讓我們超級驚喜!整體色調選用柔和奶茶色,搭配大量的木質元素,營造出溫暖又療癒的調性,加入弧形收邊設計,則讓線條更柔和、有美感,同時也提升安全性,孩子在家裡活動玩耍時,較不會碰撞受傷。

作品圖片
作品圖片

▲設計前後平面圖

四、完工美圖帶看

玄關設計

一踏進家門,腳下就是鋪有六角磚的落塵區,不但方便清潔,也自然的將玄關和室內空間做了區隔,設計師在此規劃完整的鞋櫃與置物櫃,賦予充足收納機能,讓空間維持整潔。另外,系統櫃門板上也貼了黑鏡,除了有延伸視覺的效果,也藉此提升玄關的明亮度。

作品圖片

▲玄關打造穿鞋椅,方便我們穿、脫鞋,還一路延伸至電視牆,造型相當流暢。

客廳設計

客廳是我們全家人最常一起待著的地方,因此在設計上,我們希望能明亮寬敞,而奶茶色電視主牆、柔軟的布沙發、溫潤的木地板,以及窗邊灑進來的自然光,恰好構築出我們理想中的療癒場域,坐在這裡看著孩子在一旁玩耍,就是我和太太一天中最愉悅、放鬆的時刻。

作品圖片

▲拆除隔間,利用沙發成為客、餐廳之間的隱形界線,保有明亮開闊感。

作品圖片

▲電視牆設置收納櫃與展示空間,搭配玻璃門片,視覺更輕盈、有層次。

作品圖片
作品圖片
作品圖片

▲在書櫃側邊、通往臥室的走廊上,設計師貼心打造一面烤漆玻璃牆,上半部我們可以貼便利貼,紀錄生活提醒事項,下方則作為孩子的專屬塗鴉區,這樣的安排增添了生活儀式感和互動性。

餐廳設計

餐廳是我們的生活核心場域之一,不只是用餐的地方,更是能夠陪伴彼此的多功能空間。因此,我們挑選了大張的實木餐桌,平時除了用餐,我也會在這裡用筆電辦公,孩子則在一旁畫畫、看書。

作品圖片

▲餐桌後方的收納櫃,可以收放各種雜物,設計師還在窗邊打造了臥榻,不但能坐著休息,側邊還結合抽屜,增加收納空間。

作品圖片
作品圖片
作品圖片

▲女兒最喜歡坐在臥榻上看書,後方的開放層架隨手拿書、放書都相當方便,也慢慢養成讓她自己整理東西的習慣。

廚房設計

原本的廚房是封閉式設計,拆除隔間改為開放式後,空間變得更加寬敞明亮,日常照看孩子更方便。設計師將原建商附的廚具檯面加寬,還另外打造一座中島,讓我們在備餐時不再侷促,中島也成為廚房與客餐廳間的過渡區。

作品圖片

▲中島側邊規劃開放式收納區,可以收放孩子的童話故事書。

主臥設計

主臥對我們來說就是休息空間,一切簡單、舒適就好,整體配置以實用為主,包含雙人床、衣櫃以及梳妝台,基本機能都到位,又不會讓空間顯得擁擠。我們很喜歡淺藍色的床頭牆,在柔和光線映照下,氛圍清新又抒壓,設計師特別打造的弧形木質床頭板,增加些微厚度,就能隨手放手機、眼鏡等小物,還結合插座,真的很方便好用。

作品圖片
作品圖片
作品圖片

▲因主臥空間不大,衣櫃採用橫拉門設計,開門不受限,動線順暢又節省空間。

小孩房設計

目前孩子還小,晚上還是跟我們一起睡,這間臥房就暫時規劃成客房兼收納空間使用。設計師在牆面搭配上用了童趣卻不失質感的配色,整體活潑又溫柔,我們覺得這樣的設計很剛好,等孩子長大一點,繼續使用也都不會覺得突兀。

作品圖片

▲頂天立地的衣櫃設計,將空間利用得很完善。

五、裝潢&入住心得分享

這是我們第一次裝修,原本還帶著一點緊張與不確定,但很幸運遇到了對的設計團隊,從一開始的溝通、規劃到最後,每個環節都讓我們感到安心,對成果更是覺得非常非常滿意!設計師在格局上幫我們做了幾個關鍵性的調整,完全顛覆了原本預售屋的配置,每個設計都兼具生活機能與美感,也多了很多一家人彼此陪伴與互動的時刻,當陽光灑進室內時,整個家療癒又舒服。住到現在也快滿一年了,回想這段裝修旅程,真的很慶幸當時做了這個決定,很感謝設計團隊,把我們對家的想像變成了真實的模樣。

專訪連結:開箱22坪北歐風療癒系親子宅!奶茶色的溫馨日常,拆一房更明亮寬敞